一代枭雄
发表于2010-7-6
5315人浏览
1人跟帖 等级:
来自:室内节点详图
[湖北]某大厦办公室装修平面图(17张) 包括:封面、图纸目录、设计说明、原始结构、配电系统图、风机盘管控制图、平面图、空调图、地面布置图、天花布置图、插座布置图、照明布置图、动力平面图、消防报警系统图、消防...
最新回复:forever5 2010-7-6 
wmjcomcn
发表于2009-4-27
4804人浏览
2人跟帖 等级:
来自:室内节点详图
某公司办公楼大堂平面图 包括:大厅平面布置图、大厅顶面布置图、大厅地面布置图、总经理室平面布置图、总经理室顶面布置图、总经理室地面布置图
最新回复:yanghan6199 2010-6-9 
ST空间国际
发表于2010-3-16
3186人浏览
1人跟帖 等级:
来自:室内节点详图
某煤矿办公空间装修立面图 (16张) 包括有:会议室立面图 接待室立面图 门厅立面图 楼梯立面 标准卫生间立面图 备注:附1-5层平面图 但是内容有缺失,尽供参考
最新回复:forever5 2010-3-16 
小龙包88
发表于2010-2-4
1150人浏览
1人跟帖 等级:
来自:室内节点详图
办公楼包间装修详图2 (2张) 内容有:平面图 天花布置图 房间立面图
最新回复:forever5 2010-2-4 
wuzhuo_727
发表于2010-2-2
2596人浏览
1人跟帖 等级:
来自:室内节点详图
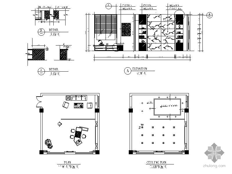
总经理办公室装修详图 包括有:平面图 天花图 房间立面图 节点大样
最新回复:forever5 2010-2-2 