混凝土节点详图_结构设计图片
本小组汇集图集、预应力、平法构造等混凝土节点详图。需要的龙友可以进行下载,也可以上传混凝土结构详图的相关资料,与建筑人一起分享!
  • 87887成员
  • 7556主题
  • 9477回复
  • 0热度
  • 0周热度
  • 0月热度
  • 0总热度

了解更多

检索到996条内容

0

落零儿    发表于2011-9-1    837人浏览  1人跟帖   等级:   来自:混凝土节点详图  

某框架办公楼楼梯构造详图   共1张图纸。

0

落零儿    发表于2011-9-1    1045人浏览  1人跟帖   等级:   来自:混凝土节点详图  

某厂房楼梯构造详图   共1张图纸。

0

flyegg111    发表于2011-8-30    744人浏览  1人跟帖   等级:   来自:混凝土节点详图  

共1张图纸。   

0

flyegg111    发表于2011-8-29    890人浏览  1人跟帖   等级:   来自:混凝土节点详图  

共1张图纸。

0

flyegg111    发表于2011-8-24    706人浏览  1人跟帖   等级:   来自:混凝土节点详图  

共1张图纸。   

0

flyegg111    发表于2011-8-24    1001人浏览  1人跟帖   等级:   来自:混凝土节点详图  

共两张图纸。   

0

flyegg111    发表于2011-8-23    560人浏览  1人跟帖   等级:   来自:混凝土节点详图  

共6张图纸。

0

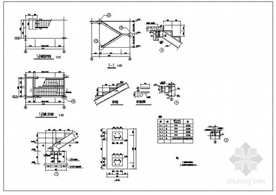
宁静一夏    发表于2011-8-23    7154人浏览  1人跟帖   等级:   来自:混凝土节点详图  

某剪刀梯构造详图   共1张图纸。

0

悟惜瑶    发表于2011-8-23    2062人浏览  1人跟帖   等级:   来自:混凝土节点详图  

图纸包括:台阶结构图,平面布置图,楼梯结构图   共3张图纸。

0

flyegg111    发表于2011-8-22    746人浏览  1人跟帖   等级:   来自:混凝土节点详图  

共三张图纸。

0

宁静一夏    发表于2011-8-22    1854人浏览  1人跟帖   等级:   来自:混凝土节点详图  

图纸包括:楼梯步级大样,钢梁大样图,结构平面图,节点详图   共1张图纸。

0

宁静一夏    发表于2011-8-19    1986人浏览  1人跟帖   等级:   来自:混凝土节点详图  

某楼梯构造详图   共2张图纸。

0

flyegg111    发表于2011-8-18    634人浏览  1人跟帖   等级:   来自:混凝土节点详图  

共一张图纸。   

0

flyegg111    发表于2011-8-16    552人浏览  1人跟帖   等级:   来自:混凝土节点详图  

共4张图纸。   

0

宁静一夏    发表于2011-8-16    922人浏览  1人跟帖   等级:   来自:混凝土节点详图  

某五层办公楼楼梯节点详图   共1张图纸。

0

flyegg111    发表于2011-8-15    780人浏览  1人跟帖   等级:   来自:混凝土节点详图  

三张图纸。   

0

宁静一夏    发表于2011-8-15    4259人浏览  1人跟帖   等级:   来自:混凝土节点详图  

图纸包括:楼梯平面图,剖面图,结构图   共2张图纸。

0

flyegg111    发表于2011-8-11    849人浏览  1人跟帖   等级:   来自:混凝土节点详图  

共1张图纸。

0

宁静一夏    发表于2011-8-11    895人浏览  1人跟帖   等级:   来自:混凝土节点详图  

某11层住宅楼梯节点详图   共3张图纸。

0

宁静一夏    发表于2011-8-11    591人浏览  1人跟帖   等级:   来自:混凝土节点详图  

图纸包括:剖面图,平面图,配筋图   共3张图纸。