室内节点详图是构成大样图的重要条件,有了好的节点详图才能保证大样图的质量,本小组内包含了各种节点详图的资料,仅供参考。
- 203412成员
- 10510主题
- 13111回复
- 0热度

发表于2011-8-19
2879人浏览
1人跟帖 等级:
来自:室内节点详图
办公室接待台详图
最新回复: 2011-8-19 
发表于2011-7-29
9903人浏览
1人跟帖 等级:
来自:室内节点详图
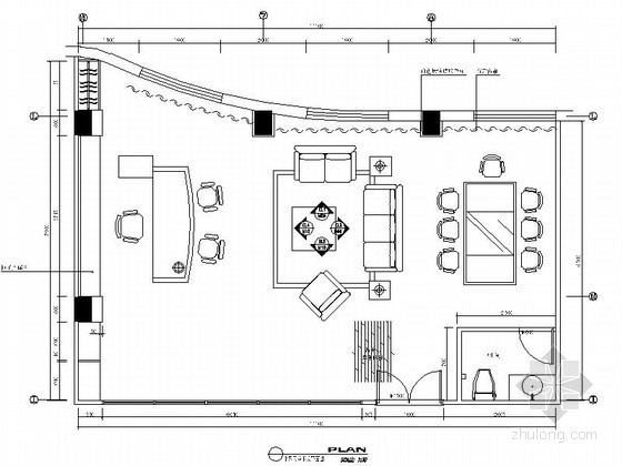
办公空间平面布置图
最新回复: 2011-7-29 
发表于2011-4-28
1226人浏览
1人跟帖 等级:
来自:室内节点详图
会议室拼纹装饰墙详图
最新回复: 2011-4-28 
发表于2011-4-28
1546人浏览
1人跟帖 等级:
来自:室内节点详图
木纹面饰会议室墙详图
最新回复: 2011-4-28 
发表于2011-4-28
1834人浏览
1人跟帖 等级:
来自:室内节点详图
会议室实木造型墙详图
最新回复: 2011-4-28 
发表于2011-4-28
1468人浏览
1人跟帖 等级:
来自:室内节点详图
会见厅墙面详图
最新回复: 2011-4-28 
发表于2011-4-28
3999人浏览
1人跟帖 等级:
来自:室内节点详图
会议室墙面详图
最新回复: 2011-4-28 
发表于2011-4-28
1238人浏览
1人跟帖 等级:
来自:室内节点详图
会议室衣柜详图
最新回复: 2011-4-28 
发表于2011-4-28
1820人浏览
1人跟帖 等级:
来自:室内节点详图
会见厅壁龛详图
最新回复: 2011-4-28 
发表于2011-3-25
1680人浏览
1人跟帖 等级:
来自:室内节点详图
酒店办公大楼区立面图
最新回复: 2011-3-25 
发表于2011-3-22
1793人浏览
1人跟帖 等级:
来自:室内节点详图
前厅服务台详图
最新回复: 2011-3-22 
发表于2011-3-22
2362人浏览
1人跟帖 等级:
来自:室内节点详图
弧型办公前台详图
最新回复: 2011-3-22 
发表于2011-1-14
1180人浏览
1人跟帖 等级:
来自:室内节点详图
共(3张)
最新回复: 2011-1-14 
发表于2011-1-14
1143人浏览
1人跟帖 等级:
来自:室内节点详图
共(3张)
最新回复: 2011-1-14 
发表于2011-1-14
2903人浏览
1人跟帖 等级:
来自:室内节点详图
共(2张)
最新回复: 2011-1-14 
发表于2011-1-14
1690人浏览
1人跟帖 等级:
来自:室内节点详图
房地产财务室装修详图
最新回复: 2011-1-14 
发表于2011-1-11
1603人浏览
1人跟帖 等级:
来自:室内节点详图
共(4张)
最新回复: 2011-1-11 
发表于2009-8-5
2345人浏览
2人跟帖 等级:
来自:室内节点详图
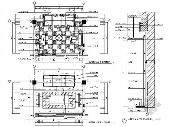
会议室详图 主要包括:会议室平面布置、会议室天花布置、会议室地面布置、会议室立面图、剖面图及节点图
最新回复: 2011-1-11 
发表于2010-12-28
2543人浏览
1人跟帖 等级:
来自:室内节点详图
共(2张)
最新回复: 2010-12-28 
发表于2010-12-9
1691人浏览
1人跟帖 等级:
来自:室内节点详图
监事长办公室详图
最新回复: 2010-12-9 