cwdf
发表于2009-4-30
10409人浏览
2人跟帖
等级:
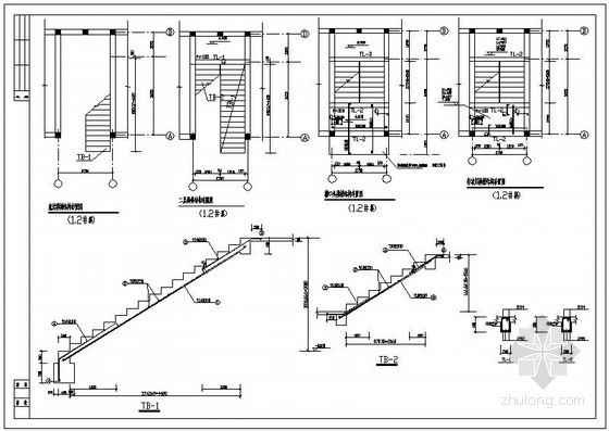
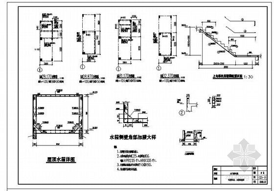
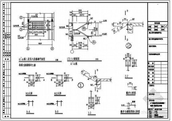
来自:混凝土节点详图 